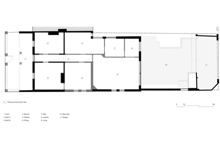
Helvetia is the alteration and renovation of a double-storey Victorian terrace in Fitzroy, Melbourne. The home had been separated in the 1960s to operate as a boarding house and reconfigured again in the 1980s into two apartments. Muddled, confused, dark, and in a sad state of disrepair, the challenge was to resurrect Helvetia.
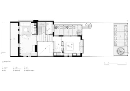
The owners asked us to convert their house back into a single dwelling to make their dark and awkward home more liveable. Their hope was for an inner city “sanctuary”. In removing two rooms (above and below) in the center of the building and utilizing the side laneway, Helvetia has been transformed into a light-filled family-sized home, with multiple gardens, a flexible floor plan, a dramatic central entryway, and a towering sunlit atrium.
Helvetia is a considered, detailed and dynamic ‘before and after’ project. An exercise in making the most of what you have, in ego restraint, and in focusing on the fundaments of sustainability, predominantly ‘Reuse’.
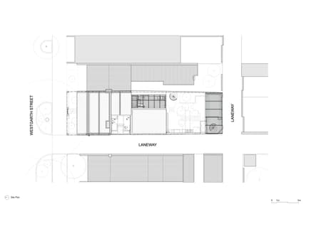
Rather than opt for the standard heritage response, demolishing everything beyond the frontage, we found there was no structural damage to the rear extension. It wasn’t pretty but didn’t need to go. Instead, we chose to use the existing brick fabric and work with the skin we had.
The resurrection required major surgery, from the inside out. We completely removed the rotten core to create a substantial light well. Internally most of the dividing walls were removed, adding sliding doors and curtains to offer flexibility of use and function. Future-proofed for future circumstantial changes. A large balcony terrace off the main bedroom was reimagined and at the rear of the site is the addition of a large (possum-proof) productive garden, with a shed and carport beneath.
The owners: “Our sanctuary has been created and the effect on our lives has been profound.”


















































