A New Building In The Heart Of The Parc De La Villette In Paris - Teams in charge of running the Parc de la Villette and its facilities in Paris were previously housed in the Cité Jardin, made up of 9 prefabricated buildings constructed in 1982 and, in an advanced state of disrepair.
The Etablissement Public du Parc et de la Grande Halle de la Villette (EPPGHV) wished to construct a new building providing its teams with a more efficient working tool, giving back park space to the public, in this ecological urban place. The new workplace has been designed as a “base camp” for 155 workstations on a 3,000 m2 surface, while 5,000 m2 of green space has been restored to the public park.
The Architectural Project - The building’s line follows the footsteps of architect Bernard Tschumi 1982’s masterplan of the Parc de la Villette and Folies. The project is based on a generic structure where both uses and the making of events shape the identity of the place, where nature blends with the architecture, and where space is shared allowing more.
Its design features two interlocking structures, one in concrete for its strength and inertia, the other in wood for its lightness and low carbon impact; they have 12-meter spans, freeing up indoor spaces. In constant evolution, this variable geometry building can be adapted to suit any projects it hosts. In order to preserve and enhance the Park’s natural heritage and biodiversity, the building comes compact with a limited footprint, allowing 5,000 m2 of green space to be restored to the public, along with access to the ‘fond de Rouvray’s’ dock.
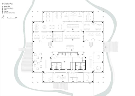
A Tailor-Made Interior Design - Bathed in an undergrowth atmosphere created by natural light streaming through the structure, the Pavillon Jardins is the new base camp for teams in charge of running the Parc and the Grande Halle de la Vollette. It is organized on two levels around a central atrium, where a staircase-gradin allows project presentations, conferences and informal get-togethers.
Tailor-made micro-architectures punctuate the space, serving as meeting cells, reprographics, coffee lounges... Workspaces are flexible and enjoy panoramic views of the Park’s abundant vegetation. Designed in close collaboration with users, they are freely organized with structuring furniture created by the studio, some of which were produced by La Villette teams.






























