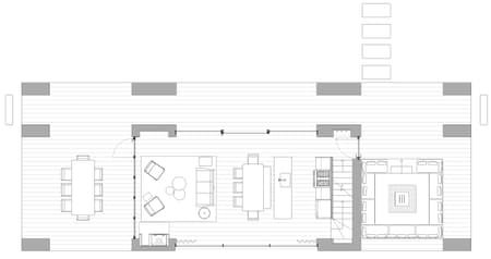
With tight interior dimension restrictions, the brief was to create a versatile set of spaces that could house a family of four as well as a pool house for the family lake. Conceived as a jewel box that opens itself onto a series of terrasses, that project can double its size depending on the season. An intricate interaction between the interior volumes creates a sense of privacy while preserving the possibility to have guests and sit eight comfortably
Expand full description
Request Press Kit for Print

Atelier Échelle
Montreal, Canada

© Maxime Brouillet

© Maxime Brouillet

© Maxime Brouillet

© Maxime Brouillet

© Maxime Brouillet

© Maxime Brouillet

© Maxime Brouillet

© Maxime Brouillet

© Maxime Brouillet

© Maxime Brouillet

© Maxime Brouillet

© Maxime Brouillet

© Maxime Brouillet

© Maxime Brouillet

© Maxime Brouillet

© Courtesy of Atelier Échelle

© Courtesy of Atelier Échelle

© Courtesy of Atelier Échelle
 - 300 dpi.jpg?w=450&q=75&dpl=dpl_6NKhQbYoNKZ4YGsW1tKTDHjTc7uH)
© Courtesy of Atelier Échelle

© Courtesy of Atelier Échelle