The Caetés House is located on an urban plot within a mixed-use zone of the city. The street is quiet, characterized by the coexistence of residential, service, and commercial uses. Its proximity to public transportation and easy access to green infrastructure create a favorable urban context.
The program was designed to accommodate a large family consisting of a couple and five children. The family configuration is "tentacular," featuring a complex and interconnected structure that moves beyond the traditional nuclear model, incorporating various unions, separations, remarriages, and diverse affective bonds, resulting in an expanded network of relationships.
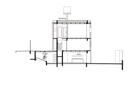
The implementation of a compact three-story volume optimizes the use of built areas and their relationship with the exterior spaces, prioritizing natural lighting and ventilation. Each floor was designed with distinct functions and attractions. The layout of each level was idealized to provide maximum flexibility, adopting an open plan with internal drywall partitions.
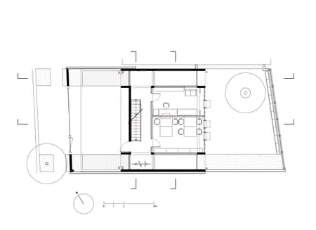
The intermediate level, with direct access from the street, houses an open driveway for two vehicles connected to a vestibule where the main staircase is located. Adjacent to this space, two independent offices—separated by voids—integrate the dynamics of adult work and children's leisure (games and videos) into the daily life of the residence.
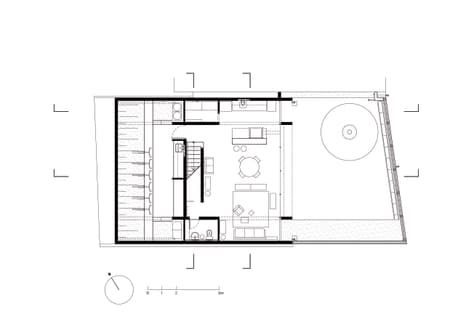
The lower floor concentrates the social area, with an integrated living room, dining room, and kitchen facing the backyard—a patio permeated by gardens. On the opposite side are the service area and storage (located below the garage), which also benefit from an internal garden. This level of the building features longitudinal openings along the boundaries, providing light and ventilation to a semi-underground floor, ensuring privacy while simultaneously offering a privileged view of the city skyline.
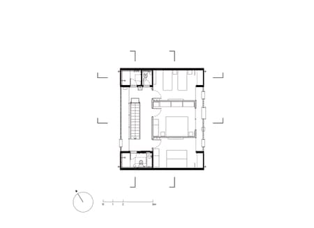
The upper floor is dedicated to the bedrooms, arranged along a hallway that receives light filtered through concrete cobogós (hollow blocks). The two bathrooms also open onto this same hall. This floor stands out for its high ceilings and generous cross-ventilation, which flows across the two facades defined by the perforated concrete panels. These large planes feature rhythmic openings that frame the city view.
The block's roof was designed to function as a suspended garden, integrated with the city's flora and fauna. This garden acts as a "green sponge," absorbing large volumes of water during rainy periods. The waterproofing system is highly efficient, utilizing a permanent water film over the slab. This film provides thermal comfort and ensures the irrigation of the garden during dry spells. This solution guarantees efficient watertightness, avoiding the use of costly and low-durability systems such as asphalt membranes. Integrated into this garden is the residence's technical area. This space houses the water tank, pressurizer, air conditioning condensers for the offices, and an electrical panel prepared for the future installation and integration of solar panels
The residence adopts a palette of raw materials, such as exposed bricks and concrete blocks, polished concrete floors (laje zero), and pre-cast concrete slabs, which contrast with large glass panes in aluminum frames. Exposed installations—with each pipe color-coded by function—reinforce the building's "brutalism," juxtaposing industrial and artisanal elements as a representation of contemporary construction techniques. The project incorporates several references to seminal works of modern architecture, influences that enrich the creative process and the living experience. This house is configured as a meeting space for different activities, ages, and daily moments, all welcomed by this shelter. It evokes the phrase that titles a book: **“The city is a house, the house is a city”**¹.
The expression "The city is a house, the house is a city," popularized by the architect Vilanova Artigas, is analyzed in its historical depth in Daniele Pisani’s book, "A cidade é uma casa. A casa é uma cidade. Vilanova Artigas na história de um topos." The work reveals that this idea is a millennial topos in architecture, tracing its origins back to classical antiquity.























































