This addition to the historic Dariaus and Girėno Stadium is conceived as a highly functional indoor athletics facility, extending the existing infrastructure to accommodate both competitive and training uses. The design approach prioritizes contextual integration, material authenticity, and spatial fluidity, aiming to reinforce the site's cultural significance within the urban fabric of Kaunas.
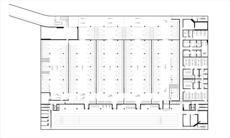
The building form is envisaged as a compact, low-profile volume with the main hall strategically positioned approximately 1.5 meters below grade. This configuration reduces the building's visual mass, maximizes sightlines for spectators, and contributes to its discreet yet prominent urban presence. Inside, the hall incorporates both 200-meter and 60-meter tracks, along with designated zones for jumps, throws, gyms, and physiotherapy rooms—creating a comprehensive athletic environment under a unified spatial envelope.
A central innovation is the installation of a telescopic, mechanized spectator stand that can be fully retracted or extended, enabling flexible spatial usage tailored to the event scale or training purpose. This adaptive element enhances the venue's multifunctionality. The interior spatial logic emphasizes openness and visibility, facilitated by continuous glass facades and a glazed roof system that floods the interior with natural light. The defining wall surfaces utilize exposed three-layer concrete, which imparts a raw, contemporary texture, contrasted with warm oak paneling in select zones to introduce tactile warmth and material depth.
The roof structure is designed as a sculptural "W"-shaped element with extensive glazing that not only provides daylight ingress but also functions as a design centerpiece. It features large glazed sections that reduce reliance on artificial lighting and contribute to passive energy management. Solar panels located on the south-facing facade further enhance the building's sustainability profile. The steel structural system, engineered by Mindaugas Vaidelys, employs slender, elegant trusses and support elements that emphasize spatial economy, structural clarity, and visual lightness.
The building's exterior employs textured concrete cladding resembling oak bark, establishing visual harmony with the adjacent park environment. The lower ground plane includes parking facilities, changing rooms, and auxiliary support spaces, while the upper levels accommodate administrative offices, conference areas, and a small café, thus serving a broad spectrum of functions that support community and sports activities.
This project exemplifies an integrated approach to sports architecture—balancing aesthetic refinement, operational flexibility, and ecological sensitivity. It respects the site's historical importance while exhibiting a contemporary, immediately recognizable form. The design elevates Kaunas' sporting infrastructure by creating a sustainable, multifunctional space that enriches the urban landscape and reinforces the city's cultural identity.

























