Asoka Hospital South Wing An Urban Medical Building Aiming to Become a Place of Regeneration
Asoka Hospital, located in Sumiyoshi in Tokyo's Koto Ward, traces its origins to a relief station established in Hibiya Park in the wake of the 1923 Great Kanto Earthquake. Since its opening in 1930, it has been serving the medical needs of the local community for nearly a century. The newly constructed South Wing was planned against the backdrop of an aging population and the increasing demand for a comprehensive community care system and recovery rehabilitation. More than merely a place for treatment, the facility presents itself as a "place of regeneration" where patients can regain their day-to-day lives and begin anew.
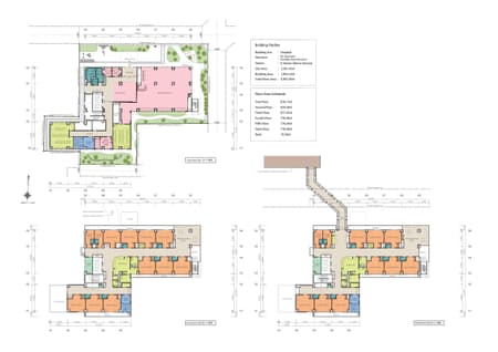
The site, previously occupied by the Asoka-en nursing home, is connected to the main hospital building across the road via a covered walkway. Beyond its functional integration with the hospital’s wards and outpatient services, the South Wing plays a critical role as a backup facility during the renovation of the aging main building. Its exterior, featuring a reddish-beige tone and curved forms, harmonizes with the main building while blending seamlessly into the urban landscape.
The first floor features an open rehabilitation room complete with a garden and large windows, designed to balance physical training with mental healing by incorporating the natural environment outside. The garden's walking paths are deliberately designed with steps and slopes to provide a space for walking practice akin to real-life conditions. Furthermore, by treating the entrance hall as an extension of the rehabilitation space, the design embodies the philosophy of integrating rehabilitation seamlessly into everyday life rather than treating it as a specialized training period.
The general wards on the second to fifth floors are designed around the themes of "regeneration" and "recovery." The walls are finished in a motif inspired by kintsugi—the traditional Japanese art of repairing broken pottery with gold. To ensure that patients and visitors can navigate the hospital easily, each floor is distinguished by a different color scheme, resulting in a vibrant and uplifting spatial design.
In terms of layout, a dining and lounge area has been placed on the side offering open views of a nearby park, allowing patients to enjoy scenery that connects them to everyday life through large windows. The lighting plan employs indirect lighting as its base to minimize harsh contrasts and glare. This creates a gentle, healing environment wrapped in soft light, helping patients feel at ease even during the daily challenges of rehabilitation.
The palliative care ward on the sixth floor incorporates natural materials that people are familiar with in their daily lives, such as wood, paper, and plaster, creating a calming space that feels connected to the normalcy of everyday living. Medical equipment, such as gas and suction outlets, is carefully concealed within cabinets to minimize the clinical and inorganic feel typical of hospital environments. Like the general wards, this floor uses indirect lighting for a soothing atmosphere, but it also introduces a circadian lighting system that adjusts color and brightness to human biological rhythms, allowing patients to feel the natural progression of a day's light even indoors.
As a symbol of community connection and to make the hospital feel even more approachable, the dining and lounge areas on each floor feature artistic tile pillars shaped like giant trees. These pillars were created through a collaborative project between traditional pottery artisans from Tokoname, Aichi Prefecture, and a local welfare and employment support facility. Each tile, uniquely textured to resemble tree bark, was crafted by hand using a traditional scratch technique, offering comfort to those who see and touch them. This initiative was designed not only to provide individuals with disabilities an opportunity to exercise their creativity but also to serve as a catalyst for a better future for everyone involved. The warmth of these handmade tiles is echoed throughout the hospital, used as subtle accents in signage and furniture.
In terms of infrastructure, the facility's plan splits the air conditioning system between electric and gas heat sources to reduce risks during emergencies. To address flood risks, a water tank has been installed on the roof to ensure a continuous water supply in the event of an outage.
Inheriting the hospital’s long and dedicated history while embodying a more open and empathetic approach to future healthcare, Asoka Hospital’s South Wing presents a compelling model for sustainable urban hospitals.







































































