Abruzzo Bodziak Architects (ABA) have designed an innovative culinary center that reimagines post-pandemic work and production spaces within an underutilized facility in Norwalk, Connecticut.
After taking over a vast kitchen and warehouse originally designed for large-scale food service, ABA’s client—a team of cooking and event planning professionals known for innovative cuisine, bespoke presentation techniques, and an award-winning cookbook—approached the Architects with what they described as a “happiness project.” Their goal was to attract both current and potential employees back to in-office work post-pandemic by transforming their new space into a welcoming, light-filled workplace for planners and chefs alike, and to craft an immersive experience for their own clients.
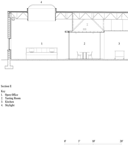
Tucked away in an industrial complex, the original building lacked light, comfort, and connectivity. A key challenge was introducing natural light into the centrally-located kitchen, the roof above which was fully obstructed by ductwork. Utilizing an adjacent area with minimal rooftop equipment, large rhythmically arranged skylights were added to bring light into a spacious, gallery-like open office. 50-foot-long parallel glazed walls are situated between the office and kitchen to distribute natural light deep into the building and foster connection between planning staff and chefs. As the glass walls inhabit this threshold, they define a third space: a series of rooms designed as the social heart of the project.
The tasting rooms, detailed in white oak and illuminated by warm, party-like lighting, create refined spaces that soften the adjacent stainless steel, white tiles, and brightly lit food preparation zone. The wood and glass bar is divided into three areas tailored for in-house hospitality: a cozy room for private tastings, a larger room accommodating twenty people for team meetings or larger tastings, and a secluded nook for private calls, paperwork, or one-on-one discussions. Each space features bespoke stone tables tailored to the architecture. Doors on both sides facilitate easy access and service, while the glass mitigates heat and noise, maintaining visibility into the bustling kitchen.
Guests move freely through the open-plan office side, where large custom furniture pieces define areas for collaborative work, casual seating, and office administration. On either side of the large space, private offices and connecting halls are clad in blue-green panels which offset the unfinished trussed ceilings above. The paneling uses color to unify doorways, windows, and kitchenette millwork and to differentiate the semi-back-of-house experience for guests on their way to individual bathrooms.
While prioritizing the culinary team’s employees and workflows in the renovation’s design, the building also warmly welcomes guests with its blend of raw and refined spaces. Its layout of adaptable rooms and seamless visual continuity allows the building to support external events while also serving as a compelling event venue on its own. “Our clients work on everything from no-waste dinners, to teaming with wine producers for intimate tastings, to serving thousands at large public events, so there’s no one-fits-all solution,” says ABA partner Emily Abruzzo. “To support their activities from testing and experimentation, to high-yield production, to seamless and chic on-site hosting, the design provides character while allowing for tremendous flexibility and openness.”























































