This house was designed for a young filmmaker who sought spacious areas without sacrificing privacy and with a controlled budget. Located on a charming and tiny street in the Pinheiros neighborhood, the building was conceived as an exercise in spatial utilization and cost reduction. Within a narrow lot, measuring 5m in width and 25m in depth, a comfortable and spacious house was developed.
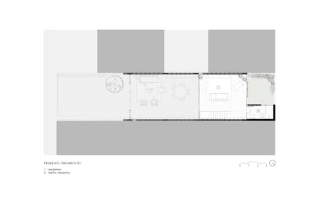
This is an exercise in articulating scales. The more intimate space of the couple's suite, lowered at the back of the house with its private garden, contrasts with the fluid space that combines the living room and kitchen under a double-height ceiling and a mezzanine. The contrast between intimate environments and common areas is explicit.
The circulation was designed as an independent element, featuring a staircase made of steel and wood. The closures at the ends are wide and light frames, reinforcing the sense of spatial expansion. Skylights ventilate and temper the interior of the property with natural lighting. On top of the roof slab, an open area was created, functioning as a solarium or elevated garden, providing a space for breathing and expansion.
From a construction perspective, a beautiful and bold structural solution was chosen, based on the use of cementitious panels measuring 0.50m x 0.50m with only 4cm thickness, pre-cast. All panels, as well as the slabs, were cast on-site in the narrow construction lot, serving as an exercise in pre-fabrication and resource economy. Lighter than structural concrete blocks, the panels significantly relieve the foundations and provide speed and cost savings to the construction.
Due to the interlocking system of the pieces, which ensures an insulating air cushion, this system promotes high-performance thermal and acoustic comfort. Furthermore, the pre-fabrication system provides pieces with excellent finishes, both on the interior and exterior, thus minimizing finishing costs.
Finally, the house has a reasonably compact program, with only one bedroom, but it is planned to accommodate an additional bedroom and a new mezzanine in the front portion of the built volume, accessible through the extension of the walkway.






























